« previous

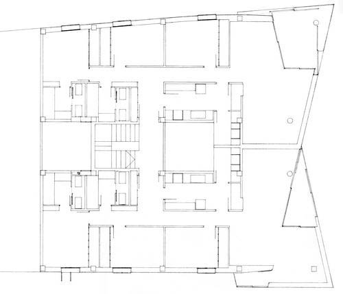
Formentor

Building of 6 dwelling units and commercial space


project: 1988 | construction/project design: 1989-1991 | Port de Pollença, Mallorca | team: R+B | budget (PEC): 348,587 € | area: 771 m² | client: Construcciones Segui, SL | address: Formentor / Bochoris

images

 -  -  -  -

project images

 -  -  -  -


other links