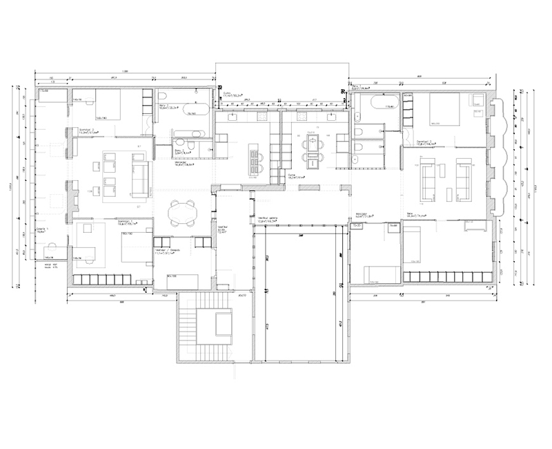
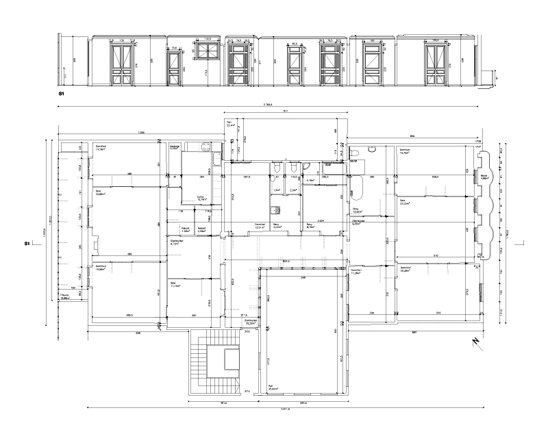
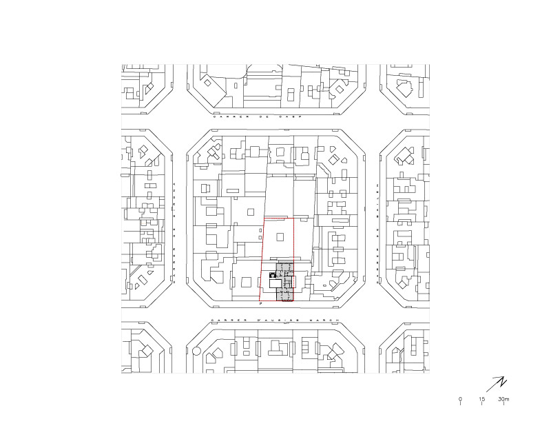
Ausiàs Marc
Reform and rehabilitation of an apartment for its division into two units
project: 2016 | construction/project design: 2020 | Barcelona | team: R+B |
client: Self promotion |
collaborators: Zana Bosnic, Vicenç Sanz, Mireia Martín, David Espuña, Jordi Rodríguez




