Col·legi d'Economistes de Catalunya
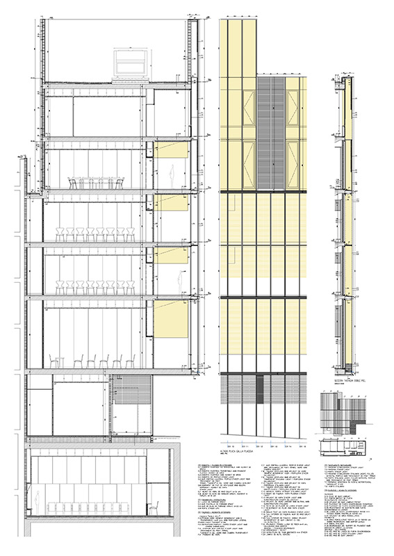
Construction of the Catalan Institute of Economists HQ
competition: First Prize - Catalan Institute of Economists HQ 2007
project: 2010 | construction/project design: 2013 | Barcelona | team: R+B | budget (PEC): 4,287,269 € |
area: 3.080 | client: Col·legi Oficial d'Economistes de Catalunya | address: Plaça Gal·la Placídia 32, 08006 Barcelona
collaborators: Zana Bosnic, Vicenç Sanz, Juan José Pérez Jarque
constructors: Tau Icesa
structural: BOMA, S.L.
installations: Grupo JG
technical architects: Valeri Consultros Associats
photographer: Jordi Surroca, Miquel Darder, Marcel Erminy, Roldán+Berengué
images
project images
media
awards
-
AIT Award 2014 2014
First prize in the category office/administration. Catalan Institute of Economists HQ
-
Catalunya Construcció Awards 2014 2014
First prize. Catalan Institute of Economists HQ
-
Saint Gobain 2014
First prize. Saint Gobain Cristalería /CITAV de Arquitectura en Vidrio 2014 Award for the Best Architectural Project. Catalan Institute of Economists HQ
-
NAN Awards 2014 2014
First Prize. Best non-residential building construction project. Catalan Institute of Economists HQ
-
3 Diamantes Award 2015
Finalits.Finalist. 3 Diamantes Award for sustainable and efficient HVAC projectes. Catalan Institute of Economists HQ
-
European Union Prize for Contemporary Architecture – Mies van der Rohe Award 2015 2015
Nominated. Catalan Institute of Economists HQ. Catalan Institute of Economists HQ
-
FAD Awards 2014 2014
Finalist. Catalan Institute of Economists HQ
-
International Architecture Awards 2015 2015
3r Award in Built Office Concept Project. Catalan Institute of Economists HQ
publications
av proyectos, n. 24 2007
Colegio de Economistas de Cataluña, Barcelona
Mais Arquitectura, 21 2008
The New Headquarters of the School of Economists in Catalunya, núm. 21, pp. 34-43.
, pp. 34-43Via Construcción, n. 54 2008
Secuencia superpuesta de cajas para economistas
On Diseño n. 290 2008
Roldán+Berengué built the new headquarters of the School of Economists in Catalunya, p. 66
-
Proposal for the Catalan Institute of Economics HQ
Avui, March, 24th, 2008 2008
La seu dels economistes, una tribuna sobre Gal·la Placídia
Panorama. Architecture Newspaper, 3 2009
Cities: Barcelona, Itinerario de Arquitectura
Catalan Institute of Economists HQL'economista, 131 2010
Especial inici construcció de la nova seu
La Vanguardia, 14 de novembre 2010
La ciudad de los economistas
Arquitectura Plus, 15. Grandes Proyectos 2011-2012, p. 86 2011
Nueva sede del Colegio de Economistas de Catalunya
Zeppelin, n. 120 2014
A Vertical Square
b-guided > barcelona 2014
Colegio de Economistas de Cataluña HQ BCN
exé. Architecture Detail Technique 2014
Institut Catalan d'économie
AV Monografías, n. 165-166 2014
Colegio de Economistas de Cataluña
DBZ, Deutsche BauZeitschrift 2014
Catalan Institute of Economists Headquarters, Barcelona
Oficinas, n. 301 2014
Sede del Colegio de Economistas de Cataluá
CoverVía Construcción, n. 119 2014
Edificio que crea ciudad: Plaza vertical
db, deutsche bauzeitung, 04.2014 2014
Neu in Barcelona. Katalanische Wirtschaftskammer
La Vanguardia Cultura 2014
Arquitectura que fa molt amb poc. Els finalistes dels premis FAD 2014
Promateriales de construcción y arquitectura actual, 82 2014
Nueva sede del Colegio de Economistas de Cataluña, Barcelona
Promateriales de construcción y arquitectura actual, 83 2014
Nueva sede del Colegio de Economistas de Cataluña, Barcelona
db, 1-2.2015 2015
Der Vertikal Verlängerte Platz. Katalanische Wirtschaftskammer in Barcelona €
L'Informatiu 2014
Catalunya Construcció
Premi Catalunya ConstruccióPremios Saint-Gobain Cristalería, CITAV. Arquitectura en Vidrio 2014 2015
Nueva sede del Colegio de Economistas de Cataluña
Premio al Mejor Proyecto de ArquitecturaTemas de Arquitectura, 19. Arquitectura española contemporánea 1, pp. 22-57 2014
Sede del Colegio de Economistas de Cataluña
Chiara Ingrosso: ON THE ROAD city. Barcelona. Architectural guide with illustrated map of the city 2019
Col·legi d'Economistes de Catalunya
, pp. 178-179.L'economista, n. 144 2013
Benvingut a la nova seu
Infodomus, n. 14 2007
Nueva Sede del Colegio de Economistas de Cataluña
, pp. 7-786Oris, n. 92 2015
Between the City and the Social Heart
, pp.76-85Archipendium 2014
Catalan Institute of Economists
19 de marçBaunetz 2016
Katalanische Wirtschaftskammer in Barcelona. ERSCHLIESSUNGSZONE HINTER GLAS AM QUARTIERSPLATZ
arqa 2015
Colegio Profesional de Economistas, Barcelona
related projects
-
2008
other links
return to Public Buildings projects




