Ford Calumet Environmental Center
International competition for an environmental studies center in the Hegewish Marsh Park, Chicago, USA
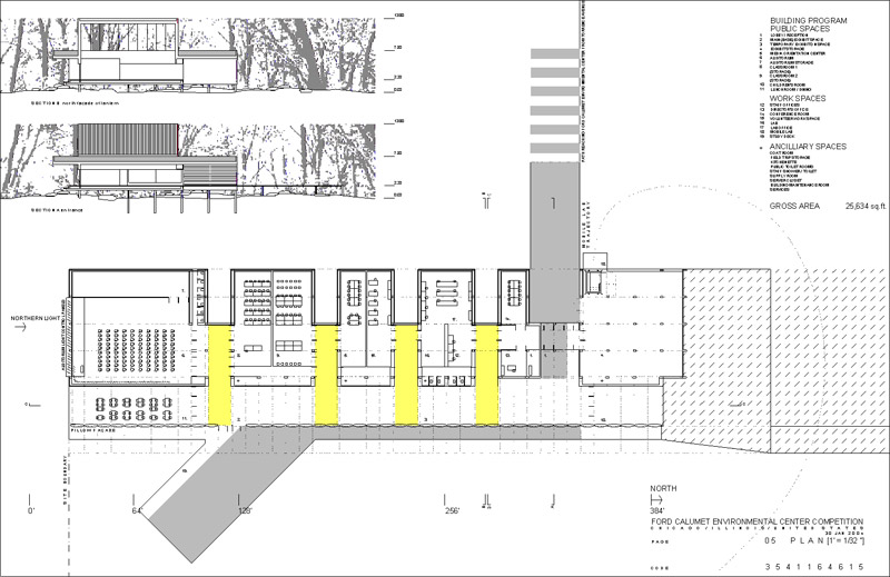
project: 2004 | Hegewish Marsh, Chicago, USA | team: R+B | area: 2,380 m² | client: Dept. of Environment of Chicago and Illinois Institute of Technology College of Architecture |
project images
publications
ArcCatMon 2006
Ford Calumet Environmental Center, Chicago
Col legi d'Arquitectes de Catalunya
other links
return to Public Buildings projects




