Lluís Borrassà
Restricted competition for the construction of 100 social housing units in Palamós Street, Barcelona
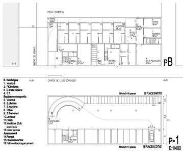
Carrer Lluís Borrassà 23-25, Barcelona | team: R+B | budget (PEC): 6,000,000 € | area: 5,984 m² | client: Patronat Municipal de l'Habitatge de Barcelona |
technical architects: Sacyr




