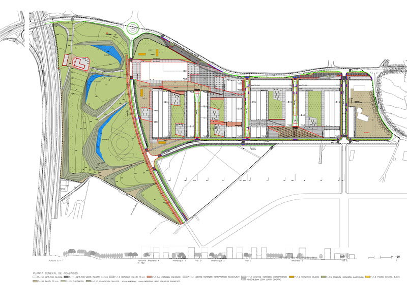
Urban project El Graell
Urbanization of El Graell in Vic, Barcelona
Vic | team: R+B | area: 201,156 m² | client: Incasol |
project images
related projects
-
2005
Urban Development-Vic-El Graell
2005
-
2009
other links
return to Urbanism: Planning / Territory / Environ & terment projects
Urbanism: Planning / Territory / Environ & terment in Google Earth




