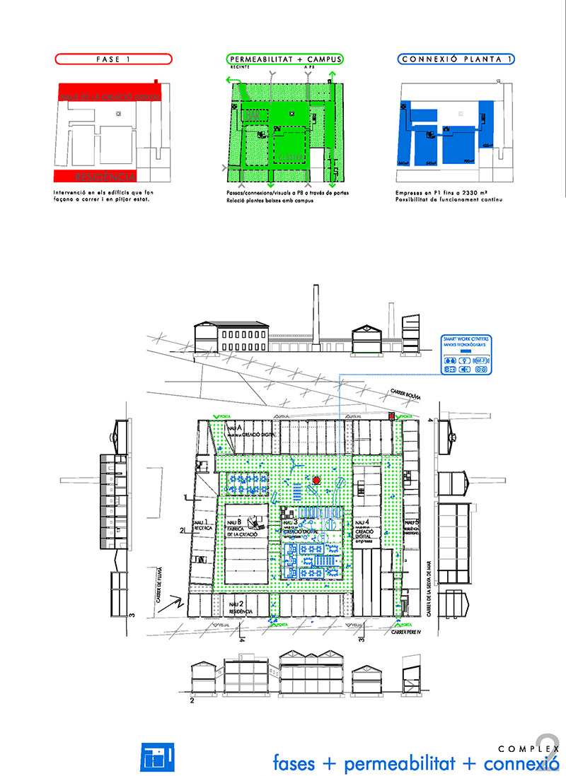
Smart City Campus
Strategic study for the implementation of the Smart City Campus in Poblenou District, Barcelona
project: 2013 | Poblenou, Barcelona | team: R+B | budget (PEC): 3,759,656 |
area: 14,161 m² | client: Gerència d'Hàbitat Urbà de l'Ajuntament de Barcelona |
collaborators: Zana Bosnic, Vicenç Sanz, Juan José Pérez Jarque
project images
other links
return to Urbanism: Planning / Territory / Environ & terment projects
Urbanism: Planning / Territory / Environ & terment in Google Earth




