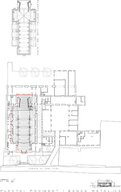
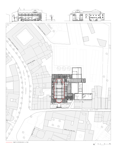
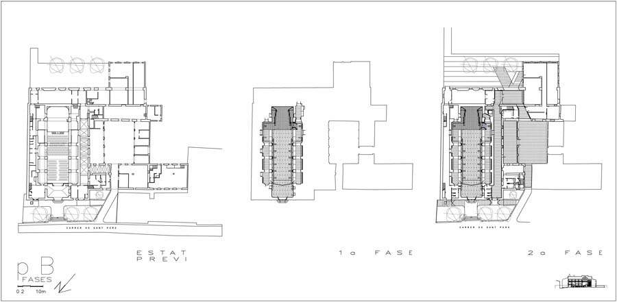
Església Trinitaris
Renovation of the Church of the Trinity Order to a polyvalent hall in Vic
project: 2009 | construction/project design: 2010 | Vic, Barcelona | team: R+B | budget (PEC): 862,090 € |
area: 1,009 m² | client: Ajuntament de Vic | address: Sant Pere 9, Vic
collaborators: Zana Bosnic, Vicenç Sanz, Víctor Figueras
constructors: Construccions F. Vidal
installations: aet - PGI
technical architects: Eduard Píriz
photographer: Jordi Surroca
images
project images
media
Església Trinitaris - Dressing with light
The different qualities and intensities
The light with different qualities and intensities has allowed us to built with only one space “ten different churches of the Trinitaris
awards
-
Catalunya Construcció Awards 2010
Finalist. Project: Renovation of the Church of the Trinity Order, Vic
publications
idl. Informaciones de luz 2010
Vestirse de luces
Renovation of the Church of the Trinity Order, VicON diseño, n. 311 2010
Iglesia de los Trinitarios de Vic
a+a, n. 14 2010
Vestirse de luces. Rehabilitación y reforma de la Iglesia de los Trinitarios de Vic
Arhitectura (Romania) 2010
Imbracat cu lumina
related projects
-
2014
-
2010
other links
return to Public Buildings projects




