Torre Plaça Europa
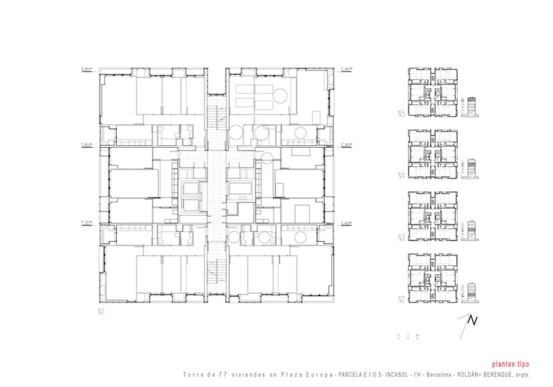
An apartment block of 75 units in Plaça Europa, L'Hospitalet, Barcelona
competition: First Prize - Gran Via Tower, Plaça Europa 2005
project: 2005 | construction/project design: 2008-2010 | L'Hospitalet, Barcelona | team: R+B | budget (PEC): 8,544,970 € |
area: 10.312,98 m² | client: Consorci Reforma Gran Via / Incasol | address: C. Herrero, 24 L'Hospitalet de Llobregat
collaborators: Diogo Santos, Zana Bosnic, Vicenç Sanz, Joao Camarinha, Juan José Pérez Jarque
constructors: CRC Obras y Servicios, S.L.
structural: Manuel Arguijo y Asociados
installations: Manel Comas i Javier Mateos
technical architects: Joan Rovira
photographer: Jordi Surroca
images
project images
awards
-
Construmat Technologic Innovation Award 2011
Finalist. Plaça Europa Tower.
-
Arquitectura Plus Award 2011 2011
First Prize. Best project in Social Housing Architecture.Plaça Europa Social Housing Tower
-
FAD Awards of Architecture, 2011 2011
Selected project. Plaça Europa Tower.
-
Catalunya Construcció Awards 2011
Econonomist Headquarters building was shortlisted at finalist at the FAD 2014 awards
-
Barbara Cappochin International Prize 2011 2011
Finalist. Best International Projects. Plaça Europa Social Housing Tower
-
Barbara Cappochin International Prize 2011 2011
Finalist. Best Constructive Detail. Plaça Europa Social Housing Tower
-
Premio de Arquitectura Española 2011 2011
Selected project. Plaça Europa Tower, L'Hospitalet.
-
Catalonia Social Housing Award 2012 2013
Finalist. Plaça Europa Social Housing Tower
publications
El País 2010
Crítica d'Anatxu Zabalbeascoa
Mark, 27 2010
r+b ups the ante with its top-down tower
On diseño, 313 2010
Torre de viviendas en Plaza Europa de L'Hospitalet de Llobregat
Pasajes, 116, pp. 26-32 2011
Torre Plaza Europa
l'ARCA, 267 (Italy) 2011
Social housing tower Plaça Europa, Barcelona
DBZ, 4 (Germany), p. 12 2011
Torre E.I.O.5 von Roldán + Berengué; ein Sozialbau
Eco Structure (USA), pp. 64 2011
Eco Centric
Ottagono (Italy), pp. 156-161 2011
Progettare le eccezioni
El País 2010
"Habitación con vistas pero económica. Una torre de pisos de protección oficial rompe moldes en la arquitectura social", crítica de Anatxu Zabalbeascoa
Oris, n. 69 (Croatia), pp. 78-88 2011
Modulated façade as an Urban Planning Theme
Hinge (Hong Kong), pp. 191-193 2011
Socialized
Apartment buildings, Hi Design (Hong Kong), pp. 86-92. 2011
Social housing tower of 75 units
Construire, 339, pp. 95-100 (Italy) 2011
Torre EI05 - Edificio residenziale per edilizia sociale Plaça Europa
La plaça d'Europa i la transformació de L'Hospitalet de Llobregat 2011
Consorci per a la Reforma de la Gran Via
Monitor unlimited, 66 2011
Code, 15 (Italy) 2011
Social dimension, p. 81
Summa+, núm. 120, pp. 64-69. Argentina. 2012
De tres en tres
Latest Apartment Building 2012
Social Housing Tower of 75 Units
Ed. Hi-Design Building Books, Dalian University of Techonology Press, ChinaArquitectura Viva n. 156 2012
Torre 5, Hospitalet de Llobregat
L'Informatiu del Col·legi d'Aparelladors, Arquitectes Tècnics i Enginyer d'Edificació de Barcelona n. 331 2012
Torre 5 a L'Hospitalet
Vivienda colectiva en España. 1992-2015 / Collective Housing 2016
Torre E.I.05 de 75 Viviendas en Plaza Europa, pp. 284-287. TC Cuadernos
3rd International Exhibition of Contemporary Housing "HOUSING 2019" 2019
Department of Housing. Faculty of Civil Engineering and Architecture. University of Niš Cluster of Urban Planning, Serbia
Constructors,n. 312 2011
Gremi de Constructors d'obres de Barcelona i Comarques
arqa 2011
Torre de 75 viviendas en Plaza Europa, Barcelona




